Промышленная Сибирь Ярмарка Сибири Промышленность СФО Электронные торги НОУ-ХАУ Электронные магазины Карта сайта
 
 

Поиск патентов

Как искать?
Реферат
Название
Публикация
Регистрационный номер
Имя заявителя
Имя изобретателя
Имя патентообладателя

    





Оформить заказ и задать интересующие Вас вопросы Вы можете напрямую c 6-00 до 14-30 по московскому времени кроме сб, вс. whatsapp 8-950-950-9888

На данной странице представлена ознакомительная часть выбранного Вами патента

Для получения более подробной информации о патенте (полное описание, формула изобретения и т.д.) Вам необходимо сделать заказ. Нажмите на «Корзину»


СИГНАЛИЗАТОР ОБЛЕДЕНЕНИЯ ЛОПАСТЕЙ РОТОРНОГО АГРЕГАТА

Номер публикации патента: 2473972

Вид документа: C1 
Страна публикации: RU 
Рег. номер заявки: 2012101587/08 
  Сделать заказПолучить полное описание патента

Редакция МПК: 
Основные коды МПК: G08B019/02   B64D015/22    
Аналоги изобретения: ИЛЬИН О. Сигнализатор обледенения. - Моделист-конструктор, 2011, 9, с.23-25. SU 1297718 A3, 15.03.1987. RU 2335434 C1, 10.10.2008. US 7014357 B2, 21.03.2006. 

Имя заявителя: Ильин Олег Петрович (RU) 
Изобретатели: Ильин Олег Петрович (RU) 
Патентообладатели: Ильин Олег Петрович (RU) 

Реферат


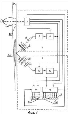
Изобретение относится к области средств регистрации обледенения лопастей различных роторных агрегатов. Технический результат -повышение информативности сигнализатора. Для этого сигнализатор содержит передающее и приемное устройства. Синхронизатор передающего устройства сопряжен с ротором. Первый выход синхронизатора подключен к первому входу генератора импульсов, выход которого соединен с входом усилителя мощности. Выход усилителя мощности подключен к входу оптического излучателя, излучающего через передающую оптическую систему и поляризатор в направлении отражающей поверхности лопасти ротора. Оптический излучатель сопряжен через анализатор и оптическую систему приемного устройства с фотоприемником. Выход фотоприемника подключен к первому входу усилителя, выход которого соединен с входом порогового устройства. Выход порогового устройства подключен к первому входу первого и к первому входу второго счетчиков-дешифраторов. Второй вход первого и второй вход второго счетчиков-дешифраторов соединены соответственно со вторым и с третьим выходами синхронизатора. Четвертый выход синхронизатора соединен с третьим входом первого и с третьим входом второго счетчиков-дешифраторов. Пятый выход синхронизатора подключен ко второму входу генератора импульсов. Вход стробирования усилителя соединен с первым выходом синхронизатора. N выходов первого и М выходов второго счетчиков-дешифраторов подключены соответственно к N и М входам индикатора наличия обледенения, содержащего N первых и М вторых элементов индикации, где N и М - целые числа больше нуля. 3 ил.

Дирекция сайта "Промышленная Сибирь"
Россия, г.Омск, ул.Учебная, 199-Б, к.408А
Сайт открыт 01.11.2000
© 2000-2018 Промышленная Сибирь
Разработка дизайна сайта:
Дизайн-студия "RayStudio"