|
На данной странице представлена ознакомительная часть выбранного Вами патента
Для получения более подробной информации о патенте (полное описание, формула изобретения и т.д.) Вам необходимо сделать заказ. Нажмите на «Корзину»
| СИСТЕМА КОНДИЦИОНИРОВАНИЯ ВОЗДУХА НА САМОЛЕТЕ |  |
Номер публикации патента: 2170192 |  |
| Редакция МПК: | 7 | | Основные коды МПК: | B64D013/08 | | Аналоги изобретения: | ВОРОНИН Г.И. Системы кондиционирования воздуха на летательных аппаратах. - М.: Машиностроение, 1973, с. 162-169, 175. SU 1777299 А1, 15.05.1994. SU 183604 A, 15.08.1996. SU 350698 A, 27.09.1972. GB 1469555 A, 06.04.1977. DE 1247146 A, 10.09.1967. |
| Имя заявителя: | Акционерное общество открытого типа "ОКБ Сухого" | | Изобретатели: | Дмитриев Ю.Г. Никифоров А.Н. Шерр А.С. | | Патентообладатели: | Акционерное общество открытого типа "ОКБ Сухого" |
Реферат |  |
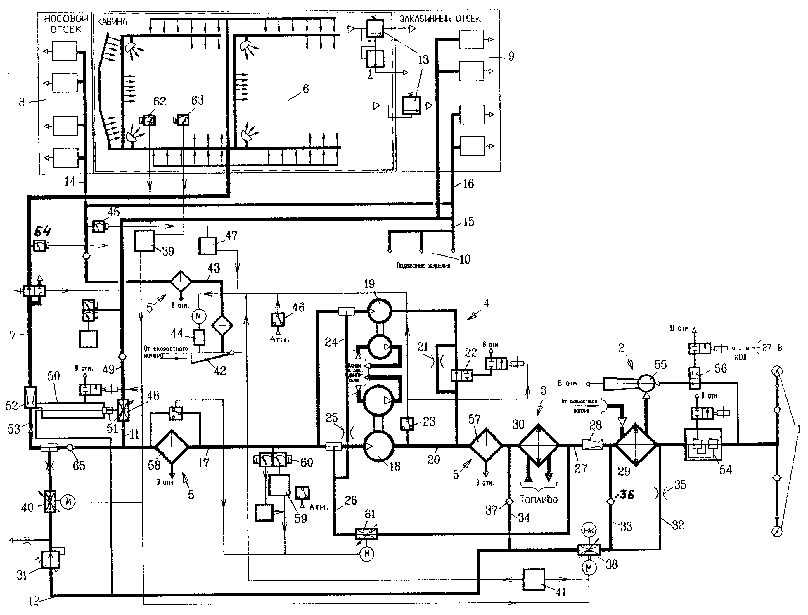
Изобретение относится к средствам обработки воздуха. Система кондиционирования содержит средства для отвода сжатого горячего воздуха от компрессора газотурбинного двигателя, для охлаждения его забортным воздухом и топливом и для последующего расширения с понижением температуры. Система также содержит средства регулирования влажности, расхода и температуры воздуха. Магистрали подачи воздуха на охлаждение оборудования в носовом отсеке самолета и в подвесных изделиях подключены к магистрали подачи охлажденного воздуха на охлаждение оборудования закабинного отсека и. через эту магистраль - к магистрали подачи охлажденного воздуха в гермокабину экипажа. Такое выполнение системы решает задачу оптимизации обработки и распределения воздуха. 3 з.п. ф-лы, 1 ил.
|